SAMMALKALLIONTIE 4 B
Olari, Espoo
Kiinteistö Oy Auralax on valmistunut vuonna 1978, mutta yhtiö on linjasaneerattu hiljattain ja asuntojen yleisilme päivitetty ajanmukaiseksi.
Tämä yhtiö muodostuu useammasta nelikerroksisesta hissittömästä kerrostalosta, joissa on yhteensä 47 LähiTapiolan Mutkatonta kotia. 1970-luvun rakentaminen takaa tilavia ja toimivia huoneratkaisuja ja säilytystilaa löytyy useista asunnoista jopa kahden vaatehuoneen muodossa. Käytössäsi ovat veloituksetta myös yhtiön yleiset tilat, kuten sauna, pesutupa, kuivaushuone, huoneistokohtaiset irtainvarastot sekä urheiluvälinevarasto. Taloyhtiön kodit ovat savuttomia.
Olarin vehreä alue houkuttelee palvelurakenteellaan, yhteisöllisyydellään ja toimivilla kulkuyhteyksillään. Koulut, päiväkodit ja merenranta ulkoilureitteineen löytyvät aivan läheltä. Autoilevalle asukkaalle löytyy lisäksi laaja pysäköintialue, josta on mahdollista vuokrata joko lämmin tai kylmä autopaikka.
Tervetuloa löytämään uusi kotisi Espoon Auralaxista!
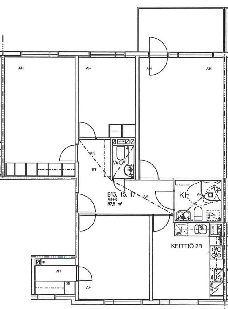
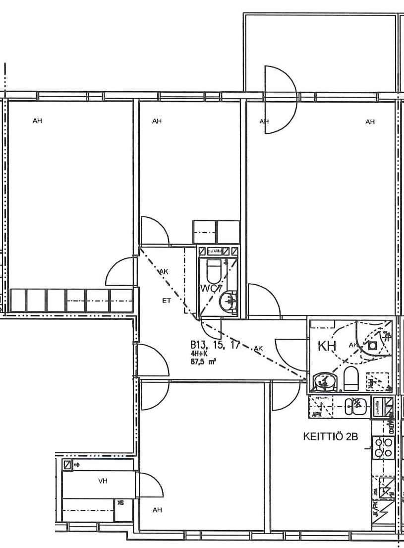
Vehreässä Olarissa läpitalon neliö kolmannessa kerroksessa! Keittiöstä löytyy kaikki tarpeellinen, esimerkiksi astianpesukone, ja paikka mikroaaltouunille. Tilava vaatehuone makuuhuoneessa. Kylpyhuoneessa on paikka pyykinpesukoneelle. Lemmikit tervetulleita.
Lisää suosikiksi
Kodin perustiedot
Katso taloyhtiön tiedot| Taloyhtiö | KI OY AURALAX |
|---|---|
| Osoite | SAMMALKALLIONTIE 4 B, 02210, Espoo |
| Talotyyppi | Kerrostalo |
| Hissi | Ei |
| Kerros | 3/4 |
| Huoneistotyyppi | 4 H + K |
| Koko | 87 m² |
| Kunto | Hyvä |
| Vapautuminen | 1.4.2026 |
| Sopimuksen tyyppi | Toistaiseksi voimassa oleva |
| Rahoitustyyppi | Varallisuusraja |
| Vuokra | 1299 €/kk |
| Vesimaksu | 26 € / hlö / kk |
| Vuokravakuus | Vakuus 1kk vuokra, sitoutumalla 12kk, 350 €. |
| Sähkösopimus | Vuokralainen tekee sähkösopimuksen energialaitoksen kanssa. |
| Kotivakuutus | Asukkaan vastuulla on ottaa oma kotivakuutus. |
| Lämmitys | Kaukolämpö |
| Lemmikit sallittu | Kyllä |
| Parveke | Kyllä |
| Huoneistosauna | Ei |
| Kylpyhuonevarusteet | Pesukoneliitäntä |
| Keittiön varusteet | Keraaminen liesi, Jääkaappi, Astianpesukone |
| Varastotilat | Huoneistokohtainen verkkokellari |
| Savuttomuus | Savuton huoneisto |
| Rakennusvuosi | 1971 |
| Energialuokka | D2018 |
| Taloyhtiön tilat | Pesutupa, Kerhohuone |
| Taloyhtiön sauna | Kyllä |
| Vapaita autopaikkoja | Kyllä |
Vuokravälittäjä
Vuokrauksen yhteystiedot
Pääkaupunkiseutu Suuromistajien vuokra-asunnot
Valimotie 9-11, 00380 Helsinki
Arkipäivisin sopimuksen mukaan
Etuna asuessasi täällä
-
Lemmikit sallittu
-
50 MBIT laajakaista
-
Vakuus 350 €/1 kk
-
Maksuton saunavuoro
-
Maksuton pesutupa
-
Asunnon vaihtaminen
-
Pitkäaikaisen asiakkaan etu