SUNTIONTIE 1 B
Nummi, Turku
Vuonna 2017 valmistunut Asunto Oy Turun Merilänkulma sijaitsee viihtyisällä Nummen asuinalueella monipuolisten palveluiden ja sujuvien yhteyksien äärellä.
Tässä kuusikerroksisessa kerrostalossa on yhteensä 52 LähiTapiolan Mutkatonta kotia pienemmistä yksiöistä aina isompiin kolmioihin. Valoisissa ja moderneissa kodeissa on käytetty korkealaatuisia pintamateriaaleja. Talo on liitetty kaukolämpöverkkoon, joka mahdollistaa miellyttävän vesikiertoisen lattialämmityksen. Käytössäsi on myös taloyhtiön kuivaushuone. Taloyhtiö on täysin savuton.
Rauhallinen ja viihtyisä Nummen kaupunginosa houkuttelee varsinkin opiskelijoita, sillä esimerkiksi yliopistolle on kävellen matkaa vain 650 m. Lähellä sijaitsevat koulujen lisäksi useat kaupat sekä hyvät ulkoilumahdollisuudet. Nummen hyvät liikenneyhteydet sujuvoittavat arkea entisestään. Linja-autoliikenne sekä hyvät pyörätiet tekevät liikkumisesta vaivatonta. Pyöräsi saat parkkiin kätevästi taloyhtiön pyörävarastoon. Mikäli liikut autolla, löytyy taloyhtiön parkkihallista vuokrattavaksi lämpöpistokkeellisia autopaikkoja.
Tervetuloa löytämään kotisi Asunto Oy Turun Merilänkulmasta!
Tämä taloyhtiö on mukana Green homes -toiminnassa, jossa asukkaille tarjotaan tietoa vastuullisesta asumisesta sekä kiinteistön energiankulutuksesta ja päästöistä....
Vuonna 2017 valmistunut Asunto Oy Turun Merilänkulma sijaitsee viihtyisällä Nummen asuinalueella monipuolisten palveluiden ja sujuvien yhteyksien äärellä.
Tässä kuusikerroksisessa kerrostalossa on yhteensä 52 LähiTapiolan Mutkatonta kotia pienemmistä yksiöistä aina isompiin kolmioihin. Valoisissa ja moderneissa kodeissa on käytetty korkealaatuisia pintamateriaaleja. Talo on liitetty kaukolämpöverkkoon, joka mahdollistaa miellyttävän vesikiertoisen lattialämmityksen. Käytössäsi on myös taloyhtiön kuivaushuone. Taloyhtiö on täysin savuton.
Rauhallinen ja viihtyisä Nummen kaupunginosa houkuttelee varsinkin opiskelijoita, sillä esimerkiksi yliopistolle on kävellen matkaa vain 650 m. Lähellä sijaitsevat koulujen lisäksi useat kaupat sekä hyvät ulkoilumahdollisuudet. Nummen hyvät liikenneyhteydet sujuvoittavat arkea entisestään. Linja-autoliikenne sekä hyvät pyörätiet tekevät liikkumisesta vaivatonta. Pyöräsi saat parkkiin kätevästi taloyhtiön pyörävarastoon. Mikäli liikut autolla, löytyy taloyhtiön parkkihallista vuokrattavaksi lämpöpistokkeellisia autopaikkoja.
Tervetuloa löytämään kotisi Asunto Oy Turun Merilänkulmasta!
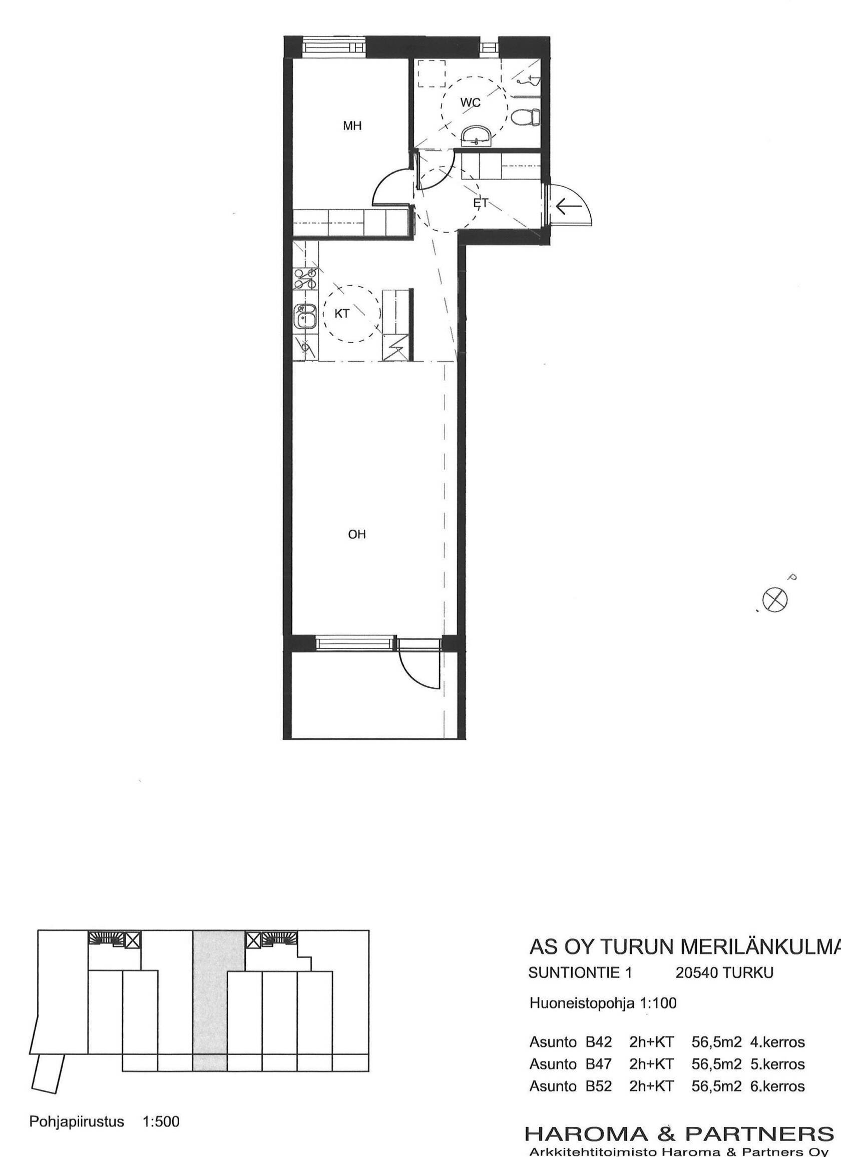
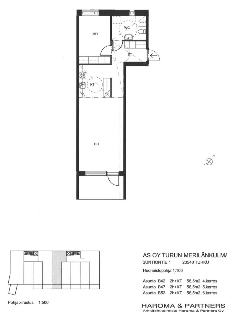
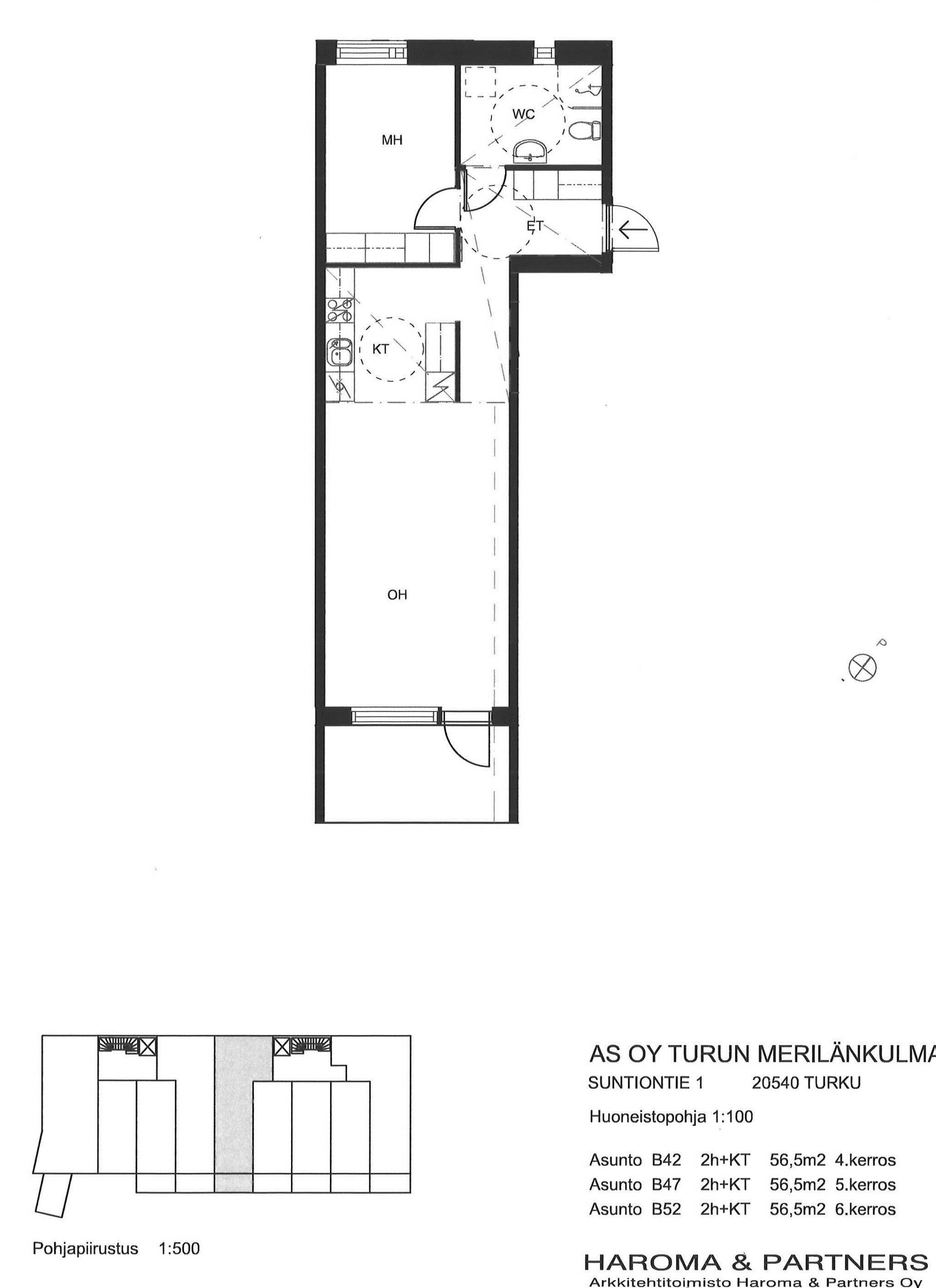
Tämä taloyhtiö on mukana Green homes -toiminnassa, jossa asukkaille tarjotaan tietoa vastuullisesta asumisesta sekä kiinteistön energiankulutuksesta ja päästöistä. Tiedot raportoidaan vuosittain porrashuoneiden ilmoitustauluilla. Voit lukea lisää Green homes -toiminnasta Mutkatonkoti.fi-sivuston Vastuullisuus-osiosta. 4. kerroksen kaksio, lähellä korkeakoulut ja palvelut. Hyvä varustetaso keittiössä mm. keraaminen liesi, tiskikone ja jää/pakastinkaappi. Kokonaan laatoitetussa kylpyhuoneessa tilavaraus pesutornille ja lattialämmitys. Lattia laminaattia. Sälekaihtimet ja lasitettu parveke.
Lisää suosikiksi
Kodin perustiedot
Katso taloyhtiön tiedot| Taloyhtiö | AS OY TURUN MERILÄNKULMA |
|---|---|
| Osoite | SUNTIONTIE 1 B, 20540, Turku |
| Talotyyppi | Kerrostalo |
| Hissi | Kyllä |
| Kerros | 4/6 |
| Huoneistotyyppi | 2 H + KT |
| Koko | 56.5 m² |
| Kunto | Hyvä |
| Vapautuminen | Heti vapaa |
| Sopimuksen tyyppi | Toistaiseksi voimassa oleva |
| Rahoitustyyppi | Vapaarahoitteinen |
| Vuokra | 945 €/kk |
| Vesimaksu | vesimaksu 26 €/hlö/kk |
| Vuokravakuus | Vakuus 1 kk vuokra, sitoutumalla 12 kk, 350 €. |
| Sähkösopimus | Vuokralainen tekee sähkösopimuksen energialaitoksen kanssa. |
| Kotivakuutus | Asukkaan vastuulla on ottaa oma kotivakuutus. |
| Lämmitys | Kaukolämpö |
| Laajakaista | Internet: 50 MT, sisältyy vuokraan |
| Lemmikit sallittu | Kyllä |
| Parveke | Parveke lasitettu |
| Huoneistosauna | Ei |
| Kylpyhuonevarusteet | Peilikaappi, KH: Mukavuuslämmitys asunnon sähköstä, KH: Keraaminen laatta, KH: Lattia laatoitettu, Pesukoneliitäntä |
| Keittiön varusteet | Keraaminen liesi, Jääpakastinkaappi, Astianpesukone |
| Varastotilat | Huoneistokohtainen verkkokellari |
| Savuttomuus | Savuton huoneisto ja parveke |
| Rakennusvuosi | 2017 |
| Energialuokka | B2018 |
| Vapaita autopaikkoja | Kyllä |
Vuokravälittäjä
Vuokrauksen yhteystiedot
Turku Asuntovuokraus
Eerikinkatu 26, 2.krs, 20100 Turku
ma-pe 8.30-16.00
Etuna asuessasi täällä
-
Lemmikit sallittu
-
50 MBIT laajakaista
-
Vakuus 350 €/1 kk
-
Kiinteistösähkönä tuulisähkö
-
Uusiutuva lämpöenergian lähde
-
Asunnon vaihtaminen
-
Pitkäaikaisen asiakkaan etu