Ohita navigaatio

ANNA SAHLSTÉNIN KATU 10 B

Vermonniitty, Espoo

Asunto Oy Anna Sahlsténin katu 10 on valmistunut joulukuussa 2019 Vermonniittyyn Leppävaaraan.

Tässä kahdeksankerroksisessa kerrostalossa on 78 LähiTapiolan Mutkatonta kotia toimivista yksiöistä isompiin kolmioihin. Kaikki yhtiön modernit kodit ovat sisustukseltaan vaaleansävyisiä ja valoisia. Kylpyhuoneet on varustettu mukavuuslattialämmityksellä. Yhtiöstä löydät asukkaiden vapaassa käytössä olevan pesutuvan, saunatilat, kuivaushuoneen, asuntokohtaiset irtainvarastot sekä ulkoiluvälinevaraston. Taloyhtiön kodit ja parvekkeet ovat savuttomia.

Alueena Vermonniitty on houkutteleva, dynaaminen ja kehittyvä. Ilman autoa liikkuville alueen julkiset palvelut ovat erinomaiset sillä alueelta kulkee useita bussilinjoja. Pienen kävelymatkan päästä löydät lisäksi Leppävaaran juna-aseman, sekä kattavat pikkumetropolin palvelut kauppakeskus Sellon yhteydestä. Autolla kulkeville löytyy hallipaikkoja vuokrattavaksi.

Tämä taloyhtiö on mukana Green homes -toiminnassa, jossa asukkaille tarjotaan tietoa vastuullisesta asumisesta sekä kiinteistön energiankulutuksesta ja päästöistä. Tiedot raportoidaan vuosittain porrashuoneiden ilmoitustauluilla.

Kiinteistöllä on lisäksi Very Good -tason BREEAM-sertifikaatti eli ympäristöluokitus. Voit lukea lisää BREEAM-sertifioinneista ja Green homes -toiminnasta...

Asunto Oy Anna Sahlsténin katu 10 on valmistunut joulukuussa 2019 Vermonniittyyn Leppävaaraan.

Tässä kahdeksankerroksisessa kerrostalossa on 78 LähiTapiolan Mutkatonta kotia toimivista yksiöistä isompiin kolmioihin. Kaikki yhtiön modernit kodit ovat sisustukseltaan vaaleansävyisiä ja valoisia. Kylpyhuoneet on varustettu mukavuuslattialämmityksellä. Yhtiöstä löydät asukkaiden vapaassa käytössä olevan pesutuvan, saunatilat, kuivaushuoneen, asuntokohtaiset irtainvarastot sekä ulkoiluvälinevaraston. Taloyhtiön kodit ja parvekkeet ovat savuttomia.

Alueena Vermonniitty on houkutteleva, dynaaminen ja kehittyvä. Ilman autoa liikkuville alueen julkiset palvelut ovat erinomaiset sillä alueelta kulkee useita bussilinjoja. Pienen kävelymatkan päästä löydät lisäksi Leppävaaran juna-aseman, sekä kattavat pikkumetropolin palvelut kauppakeskus Sellon yhteydestä. Autolla kulkeville löytyy hallipaikkoja vuokrattavaksi.

Tämä taloyhtiö on mukana Green homes -toiminnassa, jossa asukkaille tarjotaan tietoa vastuullisesta asumisesta sekä kiinteistön energiankulutuksesta ja päästöistä. Tiedot raportoidaan vuosittain porrashuoneiden ilmoitustauluilla.

Kiinteistöllä on lisäksi Very Good -tason BREEAM-sertifikaatti eli ympäristöluokitus. Voit lukea lisää BREEAM-sertifioinneista ja Green homes -toiminnasta Mutkatonkoti.fi-sivuston Vastuullisuus-osiosta.

Tervetuloa löytämään kotisi Asunto Oy Anna Sahlsténin katu 10:stä!

5. Kerroksen valoisa kolmio uudehkosta talosta.

Lähitapiola tarjoaa asukkaille maksuttoman 50mb laajakaistan. Talosauna ja pesutupa ovat asukkaiden käytössä myös ilman lisämaksua. Tämä koti on sävyltään vaalea ja hillityn tyylikäs. Leppävaaran palvelut lähellä.

Olohuoneen yhteydessä olevassa avokeittiössä voit seurustella muiden kanssa, kokkaamisen ohella. Keraaminen liesi ja astianpesukone odottavat asukkaita. Avokeittiö tuo myös avaruutta.

Lisää suosikiksi

Kodin perustiedot

Katso taloyhtiön tiedot
Taloyhtiö AS OY ESPOON ANNA SAHLSTÉNIN KATU 10
Osoite ANNA SAHLSTÉNIN KATU 10 B, 02600, Espoo
Talotyyppi Kerrostalo
Hissi Kyllä
Kerros 5/8
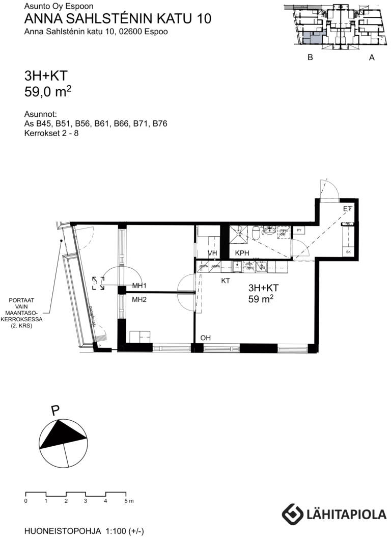
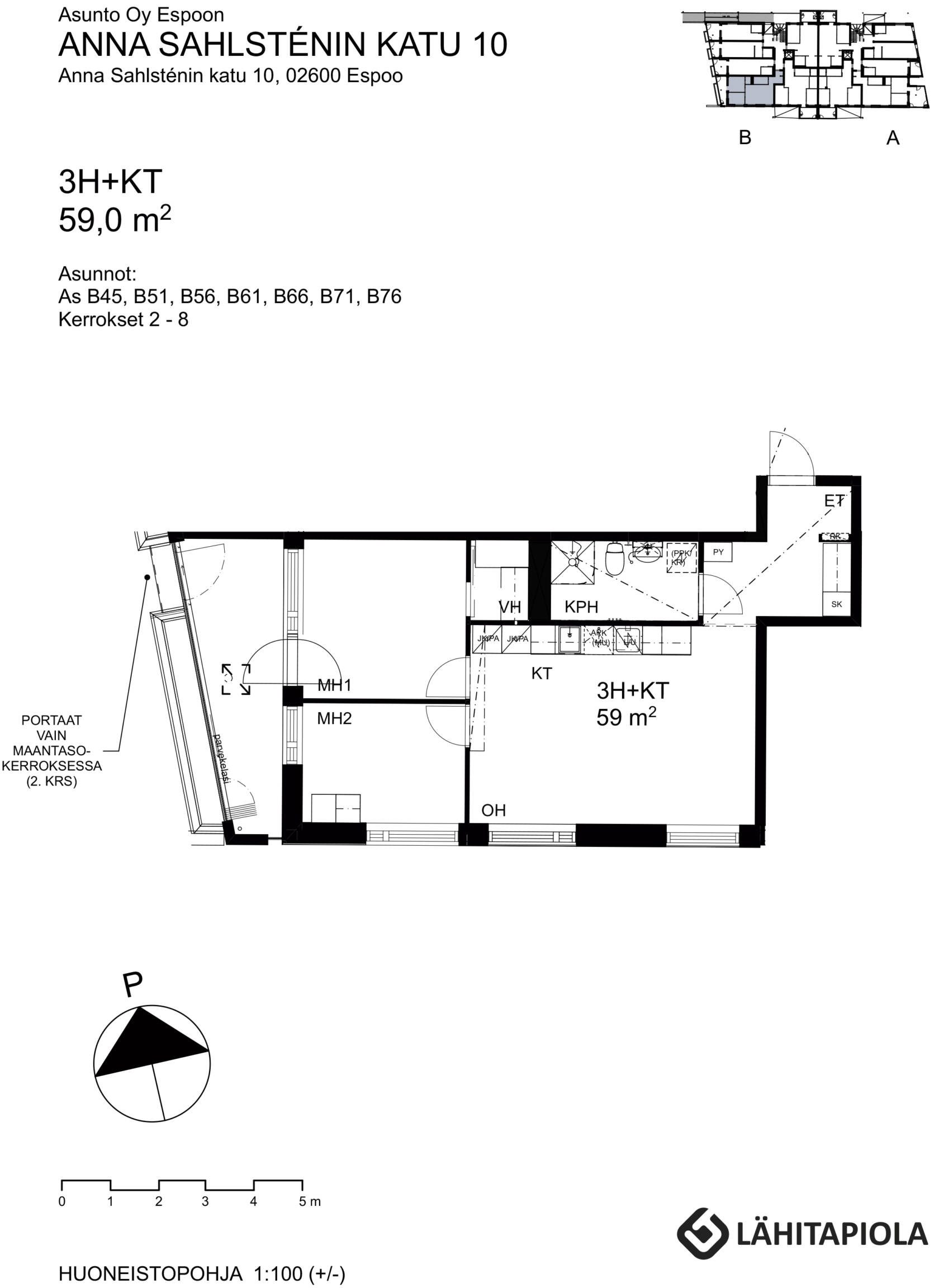
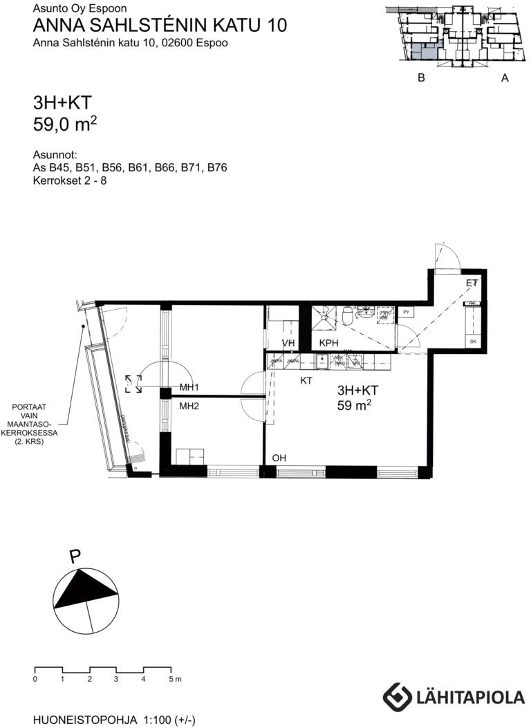
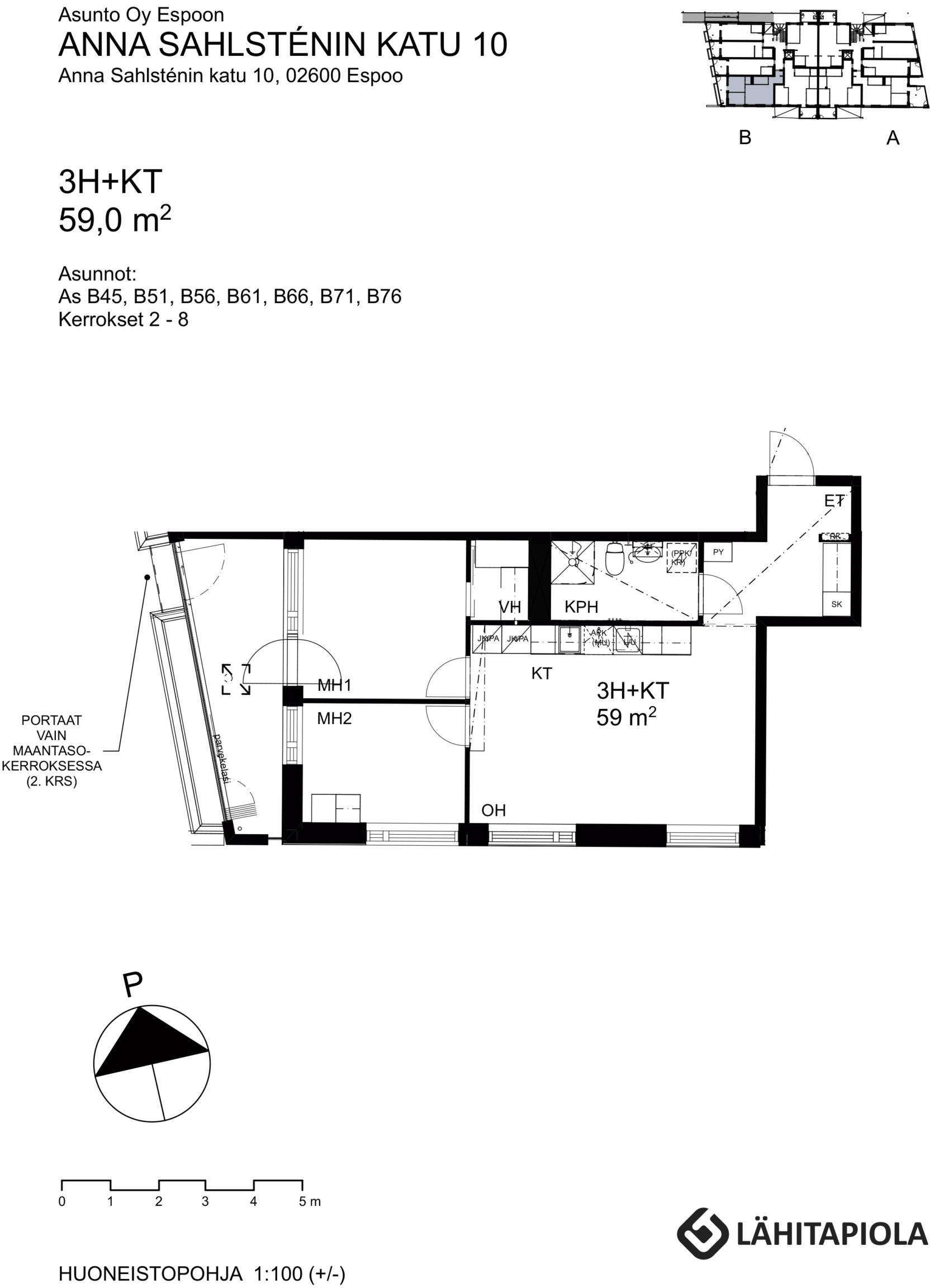
Huoneistotyyppi 3 H + KT
Koko 59 m²
Kunto Hyvä
Vapautuminen Heti vapaa
Sopimuksen tyyppi Toistaiseksi voimassa oleva
Rahoitustyyppi Vapaarahoitteinen
Vuokra 1150 €/kk
Vesimaksu 26 € / hlö / kk
Vuokravakuus Vakuus 1kk vuokra, sitoutumalla 12kk, 350 €.
Sähkösopimus Vuokralainen tekee sähkösopimuksen energialaitoksen kanssa.
Kotivakuutus Asukkaan vastuulla on ottaa oma kotivakuutus.
Lämmitys Kaukolämpö
Lemmikit sallittu Kyllä
Parveke Parveke lasitettu
Huoneistosauna Ei
Kylpyhuonevarusteet KH: Lattialämmitys vesikiertoinen, KH: Lattia laatoitettu, Pesukoneliitäntä
Keittiön varusteet Keraaminen liesi, Jääpakastinkaappi, Astianpesukone
Varastotilat Huoneistokohtainen verkkokellari
Savuttomuus Savuton huoneisto ja parveke
Rakennusvuosi 2019
Energialuokka C2018
Taloyhtiön tilat Pesutupa
Taloyhtiön sauna Kyllä
Vapaita autopaikkoja Kyllä
Katso taloyhtiön tiedot

Vuokravälittäjä

Hae tätä asuntoa

Vuokrauksen yhteystiedot

Pääkaupunkiseutu Suuromistajien vuokra-asunnot

Valimotie 9-11, 00380 Helsinki

030 609 5555

[email protected]

Arkipäivisin sopimuksen mukaan

Etuna asuessasi täällä

  • Lemmikit sallittu

  • 50 MBIT laajakaista

  • Vakuus 350 €/1 kk

  • Maksuton saunavuoro

  • Maksuton pesutupa

  • Asunnon vaihtaminen

  • Pitkäaikaisen asiakkaan etu

  • Sähköauton latauspaikka