ANNA SAHLSTÉNIN KATU 10 B
Vermonniitty, Espoo
Asunto Oy Anna Sahlsténin katu 10 on valmistunut joulukuussa 2019 Vermonniittyyn Leppävaaraan.
Tässä kahdeksankerroksisessa kerrostalossa on 78 LähiTapiolan Mutkatonta kotia toimivista yksiöistä isompiin kolmioihin. Kaikki yhtiön modernit kodit ovat sisustukseltaan vaaleansävyisiä ja valoisia. Kylpyhuoneet on varustettu mukavuuslattialämmityksellä. Yhtiöstä löydät asukkaiden vapaassa käytössä olevan pesutuvan, saunatilat, kuivaushuoneen, asuntokohtaiset irtainvarastot sekä ulkoiluvälinevaraston. Taloyhtiön kodit ja parvekkeet ovat savuttomia.
Alueena Vermonniitty on houkutteleva, dynaaminen ja kehittyvä. Ilman autoa liikkuville alueen julkiset palvelut ovat erinomaiset sillä alueelta kulkee useita bussilinjoja. Pienen kävelymatkan päästä löydät lisäksi Leppävaaran juna-aseman, sekä kattavat pikkumetropolin palvelut kauppakeskus Sellon yhteydestä. Autolla kulkeville löytyy hallipaikkoja vuokrattavaksi.
Tämä taloyhtiö on mukana Green homes -toiminnassa, jossa asukkaille tarjotaan tietoa vastuullisesta asumisesta sekä kiinteistön energiankulutuksesta ja päästöistä. Tiedot raportoidaan vuosittain porrashuoneiden ilmoitustauluilla.
Kiinteistöllä on lisäksi Very Good -tason BREEAM-sertifikaatti eli ympäristöluokitus. Voit lukea lisää BREEAM-sertifioinneista ja Green homes -toiminnasta...
Asunto Oy Anna Sahlsténin katu 10 on valmistunut joulukuussa 2019 Vermonniittyyn Leppävaaraan.
Tässä kahdeksankerroksisessa kerrostalossa on 78 LähiTapiolan Mutkatonta kotia toimivista yksiöistä isompiin kolmioihin. Kaikki yhtiön modernit kodit ovat sisustukseltaan vaaleansävyisiä ja valoisia. Kylpyhuoneet on varustettu mukavuuslattialämmityksellä. Yhtiöstä löydät asukkaiden vapaassa käytössä olevan pesutuvan, saunatilat, kuivaushuoneen, asuntokohtaiset irtainvarastot sekä ulkoiluvälinevaraston. Taloyhtiön kodit ja parvekkeet ovat savuttomia.
Alueena Vermonniitty on houkutteleva, dynaaminen ja kehittyvä. Ilman autoa liikkuville alueen julkiset palvelut ovat erinomaiset sillä alueelta kulkee useita bussilinjoja. Pienen kävelymatkan päästä löydät lisäksi Leppävaaran juna-aseman, sekä kattavat pikkumetropolin palvelut kauppakeskus Sellon yhteydestä. Autolla kulkeville löytyy hallipaikkoja vuokrattavaksi.
Tämä taloyhtiö on mukana Green homes -toiminnassa, jossa asukkaille tarjotaan tietoa vastuullisesta asumisesta sekä kiinteistön energiankulutuksesta ja päästöistä. Tiedot raportoidaan vuosittain porrashuoneiden ilmoitustauluilla.
Kiinteistöllä on lisäksi Very Good -tason BREEAM-sertifikaatti eli ympäristöluokitus. Voit lukea lisää BREEAM-sertifioinneista ja Green homes -toiminnasta Mutkatonkoti.fi-sivuston Vastuullisuus-osiosta.
Tervetuloa löytämään kotisi Asunto Oy Anna Sahlsténin katu 10:stä!
Tyylikäs kolmio Vermonniityssä odottaa uusia asukkaita!
Tässä 7. kerroksen kodissa yhdistyy moderni mukavuus ja kodikkuus. Koti on sävyiltään vaalea ja tyylikkään hilltty. Olohuoneeseen avautuva keittiö on varusteltu kaikilla tarvittavilla moderneilla laitteilla, kuten astianpesukoneella, jääkaapilla ja keraamisella liedellä.
Makuuhuoneessa on bonuksena runsaan kokoinen vaatehuone, joka tarjoaa tilaa sekä arki-, että kausivaatteille.
Kylpyhuone on varustettu lattialämmityksellä ja tilavarauksella pesukoneelle. Kodin kruunaa iso lasitettu parveke!
Huom! kuvat ovat malliasunnosta.
Lisää suosikiksi
Kodin perustiedot
Katso taloyhtiön tiedot| Taloyhtiö | AS OY ESPOON ANNA SAHLSTÉNIN KATU 10 |
|---|---|
| Osoite | ANNA SAHLSTÉNIN KATU 10 B, 02600, Espoo |
| Talotyyppi | Kerrostalo |
| Hissi | Kyllä |
| Kerros | 7/8 |
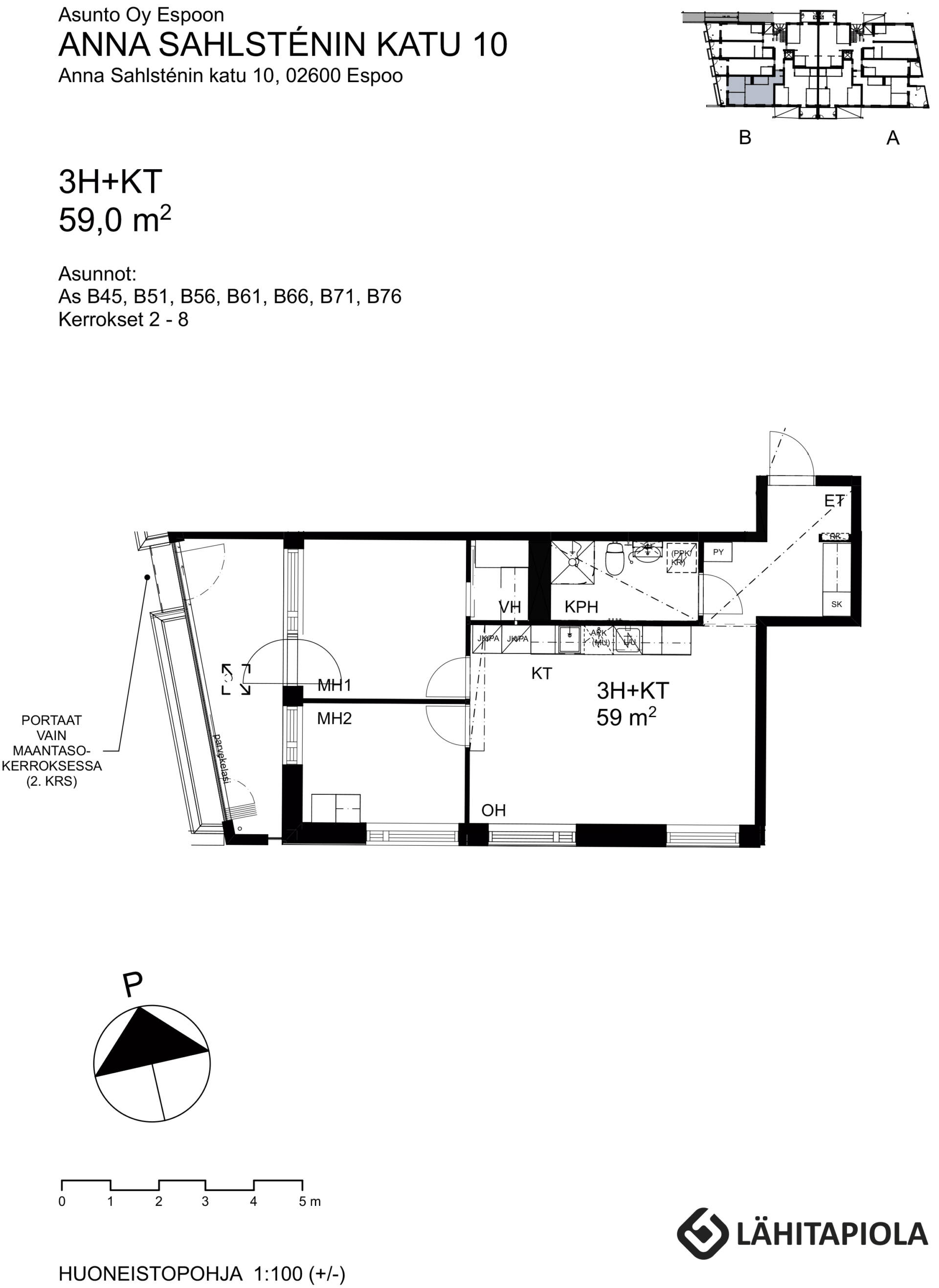
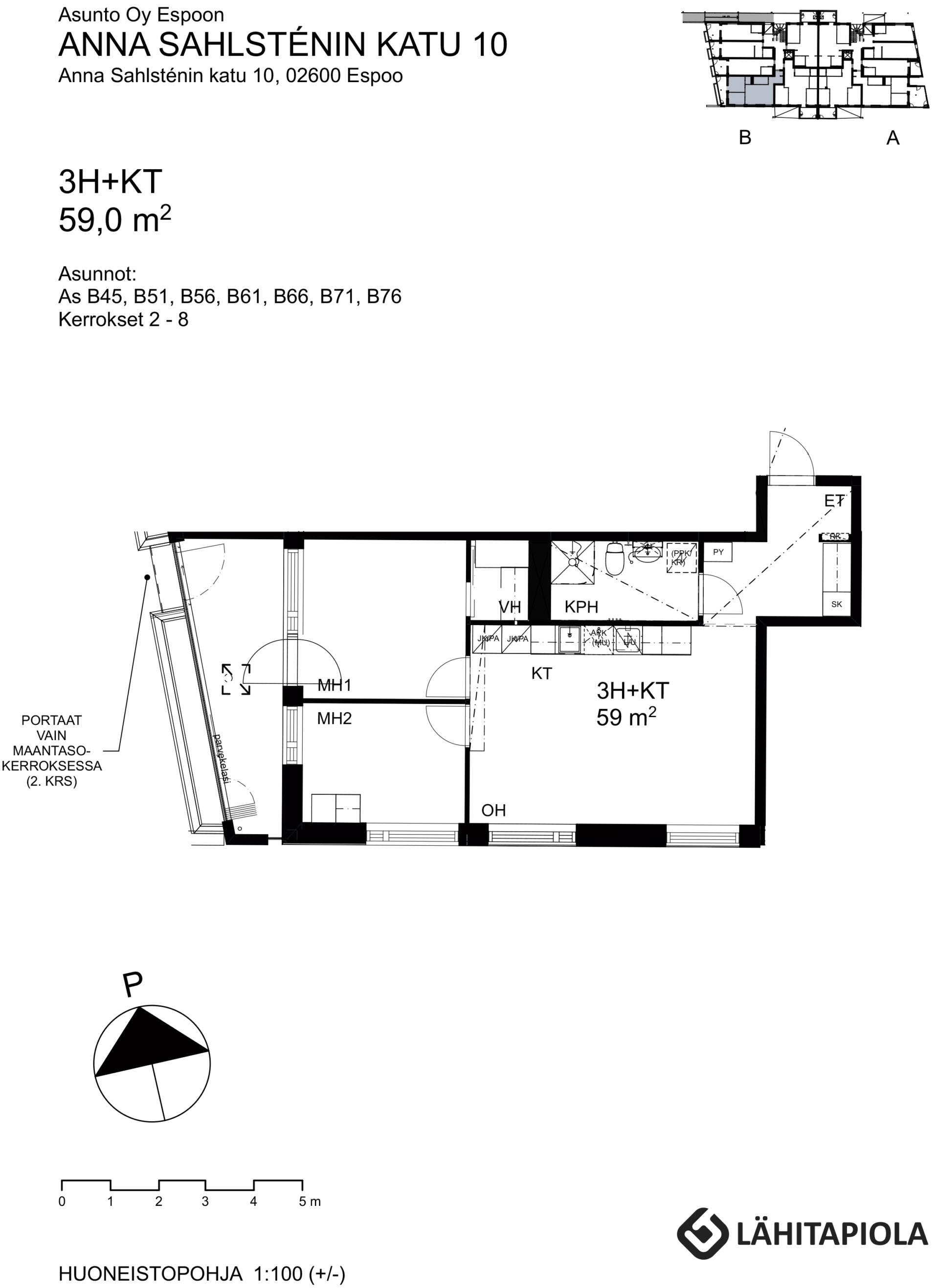
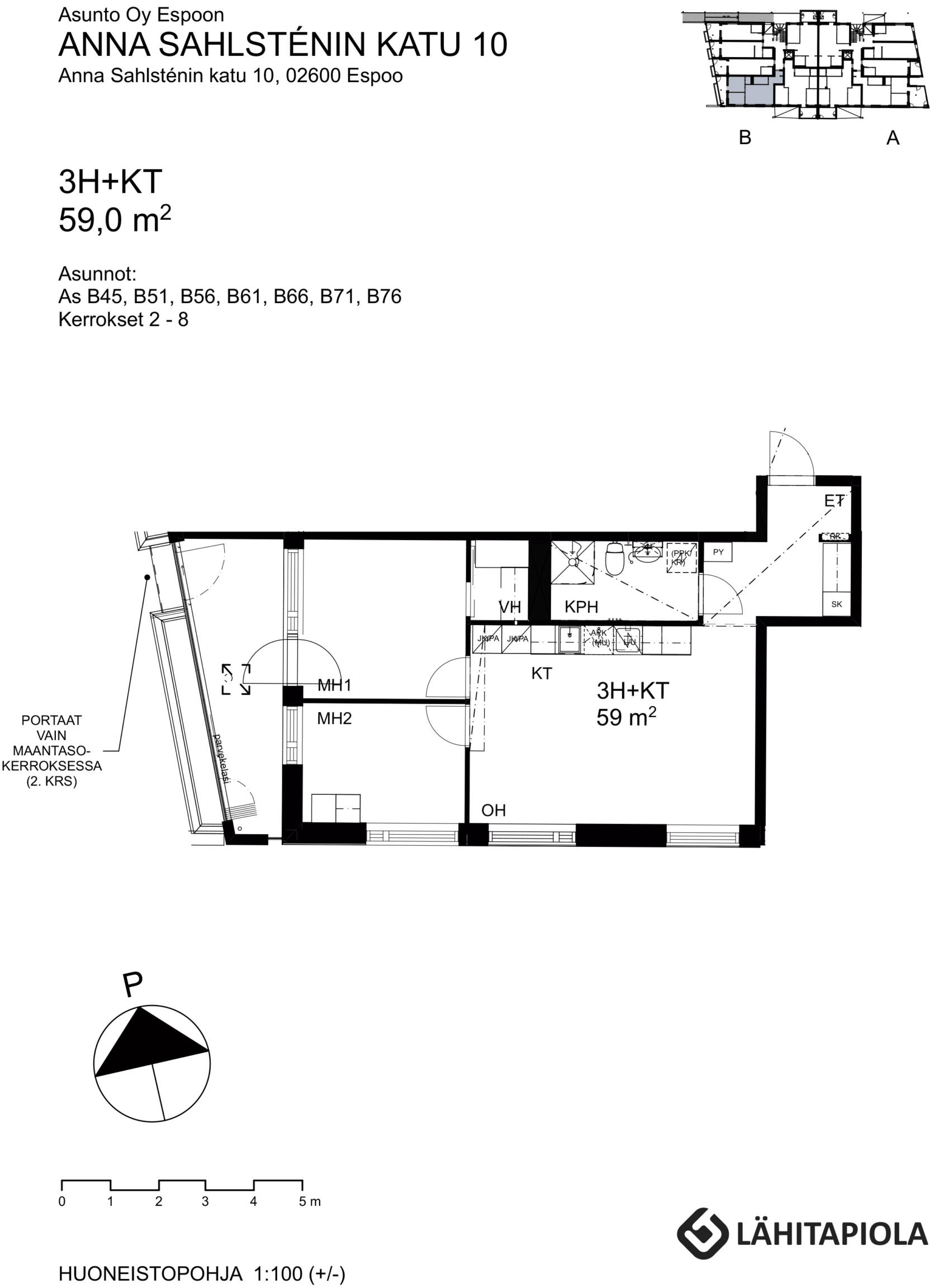
| Huoneistotyyppi | 3 H + KT |
| Koko | 59 m² |
| Kunto | Hyvä |
| Vapautuminen | Heti vapaa |
| Sopimuksen tyyppi | Toistaiseksi voimassa oleva |
| Rahoitustyyppi | Vapaarahoitteinen |
| Vuokra | 1160 €/kk |
| Vesimaksu | 25 € / hlö / kk |
| Vuokravakuus | Vakuus 1kk vuokra, sitoutumalla 12kk, 350 €. |
| Sähkösopimus | Vuokralainen tekee sähkösopimuksen energialaitoksen kanssa. |
| Kotivakuutus | Asukkaan vastuulla on ottaa oma kotivakuutus. |
| Lämmitys | Kaukolämpö |
| Lemmikit sallittu | Kyllä |
| Parveke | Parveke lasitettu |
| Huoneistosauna | Ei |
| Kylpyhuonevarusteet | Peilikaappi, KH: Lattialämmitys vesikiertoinen, KH: Lattia laatoitettu, Pesukoneliitäntä |
| Keittiön varusteet | Keraaminen liesi, Jääpakastinkaappi, Astianpesukone |
| Varastotilat | Huoneistokohtainen verkkokellari |
| Savuttomuus | Savuton huoneisto ja parveke |
| Rakennusvuosi | 2019 |
| Energialuokka | C2018 |
| Taloyhtiön tilat | Pesutupa |
| Taloyhtiön sauna | Kyllä |
| Vapaita autopaikkoja | Kyllä |
Vuokravälittäjä
Vuokrauksen yhteystiedot
Pääkaupunkiseutu Suuromistajien vuokra-asunnot
Valimotie 9-11, 00380 Helsinki
Arkipäivisin sopimuksen mukaan
Etuna asuessasi täällä
-
Lemmikit sallittu
-
50 MBIT laajakaista
-
Vakuus 350 €/1 kk
-
Maksuton saunavuoro
-
Maksuton pesutupa
-
-30 % kodin irtaimistovakuutuksesta
-
Asunnon vaihtaminen
-
Pitkäaikaisen asiakkaan etu
-
Sähköauton latauspaikka