Ohita navigaatio

As Oy Vantaan Sokeriherne

Hernekuja 1, Vantaa

Asunto Oy Vantaan Sokeriherne on rakennettu keskeiselle paikalle Tikkurilan ytimeen vuonna 2018.

Tässä viihtyisässä talossa on 8 LähiTapiolan Mutkatonta kotia, joiden arkkitehtuurissa on keskitytty toiminnallisuuteen sekä helppoon asumiseen ja sisustamiseen.

Tämä yhtiö sijaitsee erinomaisella sijainnilla lähellä kauppakeskus Dixiä ja juna-asemaa. Junalla matkustat Helsingin keskustaan alta aikayksikön, ja alueelta löydät myös monipuoliset bussiyhteydet eri puolille Vantaata ja muuta pääkaupunkiseutua. Kauppojen ja palveluiden lisäksi lähimmille ala- ja yläkouluille on vain kilometrin matka. Lähellä myös useita päiväkoteja ja Laurean ammattikorkean kampusalue.

Tervetuloa löytämään kotisi As Oy Vantaan Sokeriherneestä!

Etuna asuessasi täällä

  • Lemmikit sallittu

  • Vakuus 350 €/1 kk

  • Asunnon vaihtaminen

  • Pitkäaikaisen asiakkaan etu

Taloyhtiön perustiedot

Osoite Hernekuja 1, 01300 Vantaa
Talotyyppi Kerrostalo
Rakennusvuosi 2018
Asuntojen lukumäärä 8
Yhteiskäyttöauto Ei
Hissi Kyllä
Taloyhtiön sauna Ei
Pesutupa Ei
Kuivaushuone Ei
Oma irtaimistovarasto Kyllä
Urheiluvälinevarasto Ei
Savuton taloyhtiö Ei
Antennijärjestelmä Kaapeli-TV
Energialuokka E2013
Lämmitysmuoto Kaukolämpö
Vesimaksu Ennakko 26,00 € / hlö / kk + tasaus
Sähkösopimus Kulutuksen mukaan, asukas tekee sopimuksen
Kotivakuutus Asukkaan vastuulla
Isännöitsijä Mohammed Al Bermanei
Isännöintitoimisto Retta Management

Heti vapaat kodit

Huoneisto Koko Vuokra Seuraava esittely Siirry asunnon sivulle
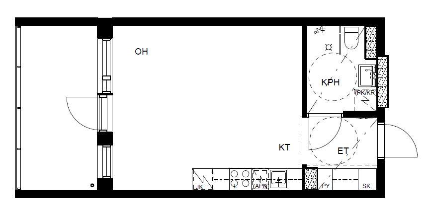
2 H + KT 39 m² 910 €/kk
  • Huoneisto

    2 H + KT

    Koko

    39 m²

    Vuokra

    910 €/kk

    Seuraava esittely

Vapautuvat kodit

Huoneisto Koko Vuokra Vapautuminen Siirry asunnon sivulle
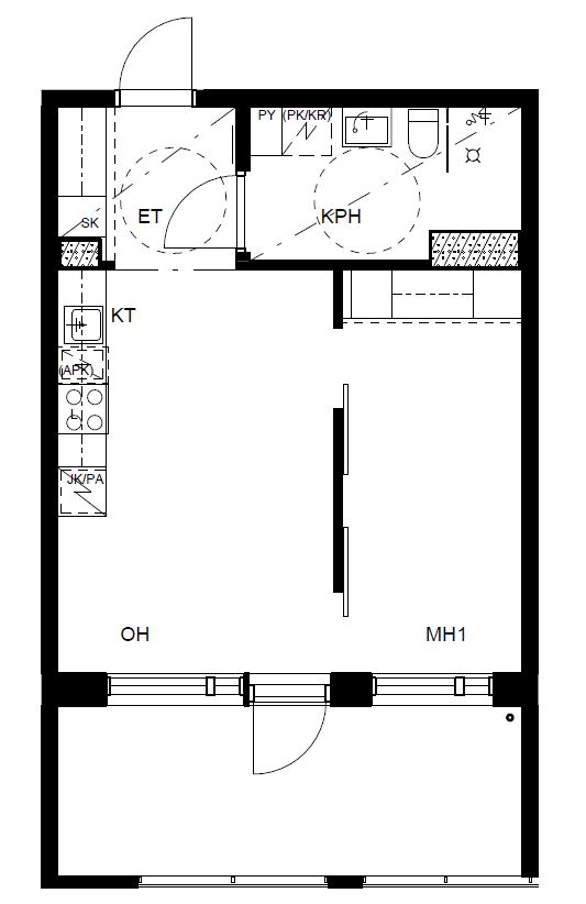
1 H + KT 32 m² 810 €/kk 1.3.2026
1 H + KT 32 m² 795 €/kk 1.3.2026
1 H + KT 32 m² 795 €/kk 1.3.2026
  • Huoneisto

    1 H + KT

    Koko

    32 m²

    Vuokra

    810 €/kk

    Vapautuminen

    1.3.2026

  • Huoneisto

    1 H + KT

    Koko

    32 m²

    Vuokra

    795 €/kk

    Vapautuminen

    1.3.2026

  • Huoneisto

    1 H + KT

    Koko

    32 m²

    Vuokra

    795 €/kk

    Vapautuminen

    1.3.2026