Ohita navigaatio

Ki Oy Auralax

Sammalkalliontie 4, Espoo

Kiinteistö Oy Auralax on valmistunut vuonna 1978, mutta yhtiö on linjasaneerattu hiljattain ja asuntojen yleisilme päivitetty ajanmukaiseksi.

Tämä yhtiö muodostuu useammasta nelikerroksisesta hissittömästä kerrostalosta, joissa on yhteensä 47 LähiTapiolan Mutkatonta kotia. 1970-luvun rakentaminen takaa tilavia ja toimivia huoneratkaisuja ja säilytystilaa löytyy useista asunnoista jopa kahden vaatehuoneen muodossa. Käytössäsi ovat veloituksetta myös yhtiön yleiset tilat, kuten sauna, pesutupa, kuivaushuone, huoneistokohtaiset irtainvarastot sekä urheiluvälinevarasto. Taloyhtiön kodit ovat savuttomia.

Olarin vehreä alue houkuttelee palvelurakenteellaan, yhteisöllisyydellään ja toimivilla kulkuyhteyksillään. Koulut, päiväkodit ja merenranta ulkoilureitteineen löytyvät aivan läheltä. Autoilevalle asukkaalle löytyy lisäksi laaja pysäköintialue, josta on mahdollista vuokrata joko lämmin tai kylmä autopaikka.

Tämä taloyhtiö on mukana Green homes -toiminnassa, jossa asukkaille tarjotaan tietoa vastuullisesta asumisesta sekä kiinteistön energiankulutuksesta ja päästöistä. Tiedot raportoidaan vuosittain porrashuoneiden ilmoitustauluilla. Voit lukea lisää Green homes -toiminnasta Mutkatonkoti.fi-sivuston...

Kiinteistö Oy Auralax on valmistunut vuonna 1978, mutta yhtiö on linjasaneerattu hiljattain ja asuntojen yleisilme päivitetty ajanmukaiseksi.

Tämä yhtiö muodostuu useammasta nelikerroksisesta hissittömästä kerrostalosta, joissa on yhteensä 47 LähiTapiolan Mutkatonta kotia. 1970-luvun rakentaminen takaa tilavia ja toimivia huoneratkaisuja ja säilytystilaa löytyy useista asunnoista jopa kahden vaatehuoneen muodossa. Käytössäsi ovat veloituksetta myös yhtiön yleiset tilat, kuten sauna, pesutupa, kuivaushuone, huoneistokohtaiset irtainvarastot sekä urheiluvälinevarasto. Taloyhtiön kodit ovat savuttomia.

Olarin vehreä alue houkuttelee palvelurakenteellaan, yhteisöllisyydellään ja toimivilla kulkuyhteyksillään. Koulut, päiväkodit ja merenranta ulkoilureitteineen löytyvät aivan läheltä. Autoilevalle asukkaalle löytyy lisäksi laaja pysäköintialue, josta on mahdollista vuokrata joko lämmin tai kylmä autopaikka.

Tämä taloyhtiö on mukana Green homes -toiminnassa, jossa asukkaille tarjotaan tietoa vastuullisesta asumisesta sekä kiinteistön energiankulutuksesta ja päästöistä. Tiedot raportoidaan vuosittain porrashuoneiden ilmoitustauluilla. Voit lukea lisää Green homes -toiminnasta Mutkatonkoti.fi-sivuston Vastuullisuus-osiosta. 

Tervetuloa löytämään uusi kotisi Espoon Auralaxista!

Etuna asuessasi täällä

  • Lemmikit sallittu

  • 50 MBIT laajakaista

  • Vakuus 350 €/1 kk

  • Maksuton saunavuoro

  • Maksuton pesutupa

  • Asunnon vaihtaminen

  • Pitkäaikaisen asiakkaan etu

Taloyhtiön perustiedot

Osoite Sammalkalliontie 4, 02210 Espoo
Talotyyppi Kerrostalo
Rakennusvuosi 1978
Peruskorjausvuosi 2003 – 2004
Asuntojen lukumäärä 47
Yhteiskäyttöauto Ei
Hissi Ei
Taloyhtiön tilat Kerhohuone
Taloyhtiön sauna Kyllä
Pesutupa Kyllä
Kuivaushuone Kyllä
Oma irtaimistovarasto Kyllä
Urheiluvälinevarasto Kyllä
Savuton taloyhtiö Ei
Laajakaista Telia 50 M sis. vuokraan
Antennijärjestelmä Kaapeli-TV
Energialuokka D2013
Lämmitysmuoto Kaukolämpö
Tehdyt remontit 2011: Putkiremontin ja sähköremontin toteutus, Pihasuunnitelman mukaiset pihan kunnostustyöt, 2018: Leanheat lämmönohjaus ja ylläpito, 2020: Kattokupujen uusiminen, IV-kanavien nuohous
Vesimaksu 26,00 € / hlö / kk
Sähkösopimus Kulutuksen mukaan, asukas tekee sopimuksen
Kotivakuutus Asukkaan vastuulla
Isännöitsijä Tomi Parkkali
Isännöintitoimisto Retta Management
Huoltoyhtiö Kotikatu Oy, Länsiväylä

Heti vapaat kodit

Huoneisto Koko Vuokra Seuraava esittely Siirry asunnon sivulle
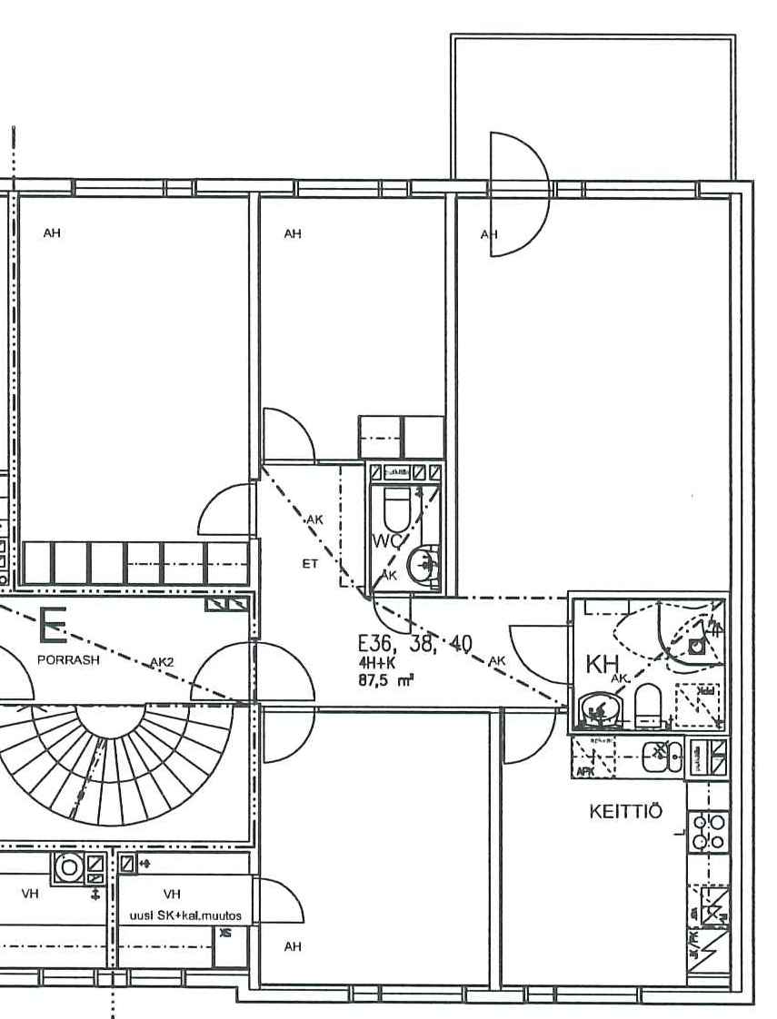
4 H + K 87 m² 1299 €/kk
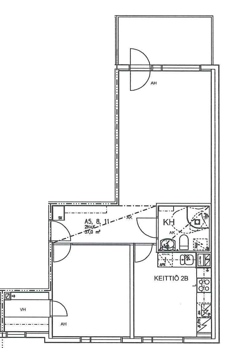
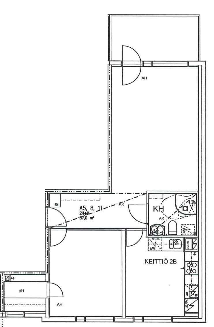
2 H + K 56.5 m² 920 €/kk
  • Huoneisto

    4 H + K

    Koko

    87 m²

    Vuokra

    1299 €/kk

    Seuraava esittely

  • Huoneisto

    2 H + K

    Koko

    56.5 m²

    Vuokra

    920 €/kk

    Seuraava esittely